- Готовый бизнес / Категории бизнеса / Стоматологии и аптеки / Действующий медицинский центр м.Коломенская
- Действующий медицинский центр м.Коломенская
- ID 1233
ПРИМЕРНОЕ РАСПОЛОЖЕНИЕ БИЗНЕСА
Округ:
ЮАО
СТРУКТУРА КОМПАНИИ
Год основания:
2008 год
Правовая форма:
ООО
АКТИВЫ БИЗНЕСА
Оборудование и имущество: Медицинское оборудование: УЗИ аппарат, прибор для вакуумного массажа, сухожаровой шкаф, ультразвук, лазер, аппарат криотерапии.
Активы на сумму 700000 руб.1-й этаж жилого пятиэтажного дома.
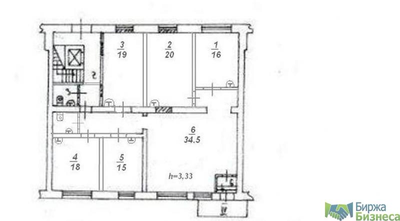
147 кв.м. - большой холл, 5 рабочих просторных кабинетов (подводка воды в каждом кабинете), 2с/у, темная комната.
Произведен ремонт с учетом требования СанПиН
Прямая аренда на 11 месяцев с пролонгацией
Аренда 150000 рублей в месяц (все включено)
Активы на сумму 700000 руб.1-й этаж жилого пятиэтажного дома.
147 кв.м. - большой холл, 5 рабочих просторных кабинетов (подводка воды в каждом кабинете), 2с/у, темная комната.
Произведен ремонт с учетом требования СанПиН
Прямая аренда на 11 месяцев с пролонгацией
Аренда 150000 рублей в месяц (все включено)
Нематериальные активы: Лицензия до 2013 г. Вся необходимая документация и сертификаты есть в наличие.
ФИНАНСОВЫЕ ПОКАЗАТЕЛИ
| Чистая прибыль: | 10 000 $ |
| Причина продажи: | прочее |
ОПИСАНИЕ БИЗНЕСА
Предложение некорректно? Пожалуйста сообщите нам об этом!
Не смогли найти подходящий бизнес?
Или посмотрите похожие объекты:
Добавить в избранное







Возврат в: 






Сайт центра: http://venera-clinic.ru/